低压电缆分支箱
所属分类:
关键词:
低压电缆分支箱
产品详情
适用范围
TKDDF系列户外低压电缆分支箱(以下简称分支箱)是我公司根据电网建设改造要求及电网运行经验,本着安全、经济、合理、可靠的原则而设计的新型配电设备,适用于城市街道、工矿企业、居民小区等场所。
型号及含义

符合标准
TKDDF系列低压电缆分支箱执行下列标准:
GB/T 7251.1 低压成套开关设备和控制设备 第1部分:总则
GB/T 7251.5 低压成套开关设备和控制设备 第5部分:公用电网电力配电成套设备
GB/T 4208及IEC 60529 防护等级(IP代码)
工作环境及安装条件
环境温度:最高气温 +40℃,24小时平均温度不超过35℃,最低气温-25℃;
空气相对湿度:≤90%(相对环境温度为20℃~25℃),在昼夜温差大的地区,应采取通风吸潮或加热等措施,防止凝露;
最大风速:35m/s;
海拔高度:不超过2000m;
环境条件:户外安装,不适用于有火灾、爆炸危险、严重污秽、化学腐蚀及剧烈震动的地方;
安装位置:与地面垂直的倾斜度不超过5°;
污染等级:3级;
防护等级:IP44;
主要技术参数
额定电压:AC400V;
额定绝缘电压:AC690V;
额定频率:50Hz;
额定短时耐受电流:20kA;
额定峰值耐受电流:40kA;
额定电流等级:630A、500A、400A、315A、250A、200A、160A、125A、100A;
外壳材质:不锈钢、SMC;
产品种类
根据壳体材质可以分为不锈钢低压电缆分支箱和非金属(SMC)低压电缆分支箱。
不锈钢低压电缆分支箱
不锈钢低压电缆分支箱箱体为封闭式结构:采用不低于2mm厚不锈钢钢板制成,水平母线位于箱内中部,采用下进线下出线,箱门采用2mm厚不锈钢钢板弯制焊接制成,箱门开启角度大于90度;
正面手动操作,双面维护;
保护接地措施:在柜内左侧中部设一根铜排做为接地母线,有M8接地点和接地标志;
防腐蚀措施:所有金属组部件具有防腐蚀能力,箱体为不锈钢。
非金属低压电缆分支线箱
非金属低压电缆分支箱箱体为封闭式结构:采用4.0mm厚,强度高、耐老化的绝缘复合材料SMC塑料压模成型,水平母线位于箱内中部;
操作方式:正面手动操作;
防腐蚀措施:箱体采用SMC树脂复合材料制成,SMC树脂复合材料是以不饱和树脂为基体,玻璃纤维为骨架,经高温一次成型,具有比重轻,抗腐蚀、耐老化、密封性能好、安全美观,具有全天候防护功能,能够满足室外工程项目中各种恶劣环境和场所的需要。
结构简介

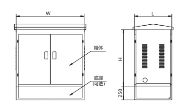
外形及安装尺寸
分支箱外形尺寸示意图
|
产品类型 |
W |
L |
H |
|
不锈钢低压
|
600 |
600 |
870 |
|
800 |
600 |
870 |
|
|
1000 |
600 |
870 |
|
|
1200 |
600 |
870 |
|
|
非金属低压
|
600 |
320 |
870 |
|
800 |
320 |
870 |
|
|
1000 |
320 |
870 |
|
|
1200 |
320 |
870 |
使用及维护注意事项
必须由合格的电气人员进行该产品的操作、维护和检修;
电缆进出处应采用可靠密封措施,确保运行安全;
断路器应定期进行维修;
每年应有一次以上对分支箱内外表面,特别是绝缘件表面进行除尘清洁工作;
分支箱在运行5年后,应对主回路和辅助回路的绝缘水平进行检测;
在维护和检修时,请务必确保分支箱断电。
订货须知
用户订货时需提供如下资料:
是否配套底座和安装支架;
产品名称、型号、规格、进出线路数、进出线方式、额定电流;
主电路图、辅助电路原理图;
主要元器件名称、型号、规格、数量;
壳体材质、厚度、尺寸要求、以及喷涂标志;
特殊环境使用要求以及其他附加要求。
相关产品
产品询价
山东泰开电工电器有限公司
服务热线:
0538-8520889
电话:
0538-8520889(销售和市场支持)
0538-5366875(综合部、人力资源部)
邮箱:tkdgdq@163.com
地址:山东省泰安市擂鼓石东大街11号
微信公众号